Yesteryear's tools
At long last another update. We've moved in just over a year ago but still have quite a bit of work to do.
I am currently working on my office so that I can actually move into it. For the last few days I have been installing the wooden floor …



{.alignleft
.size-thumbnail .wp-image-212 width="150"
height="150"}
{.alignleft
.size-thumbnail .wp-image-213 width="150"
height="150"}
{.size-thumbnail
.wp-image-198 width="150"
height="150"}
{.alignleft
.size-thumbnail .wp-image-193 width="150"
height="150"}
{.alignright
.size-thumbnail .wp-image-178 width="150"
height="150"}
{.alignleft
.size-thumbnail .wp-image-189 width="150"
height="150"}
{.alignleft
.size-thumbnail .wp-image-188 width="150"
height="150"}
{.size-thumbnail
.alignright width="150"
height="150"}

{.alignright
width="240" height="220"}Dear Kevin / Penny
{.alignleft
.size-thumbnail .wp-image-159 width="150" height="150"}
{.alignright
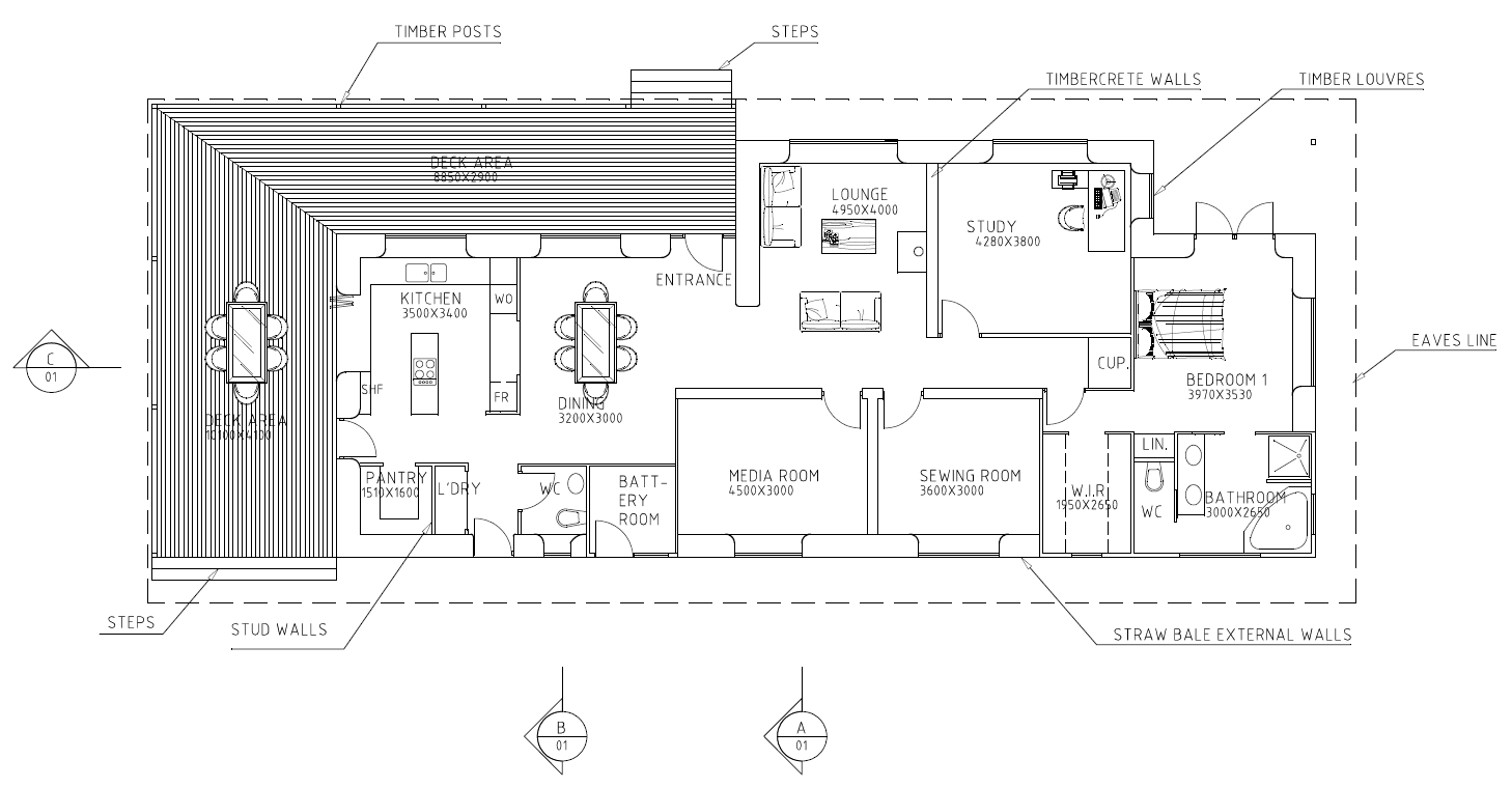
.size-full .wp-image-161 width="130" height="87"}Nick and Roger are
making great progress with the framing (left). Lovely straight posts
adorn our slab and define where our straw bale walls will be. The
Kurilpa bridge (right) is a pedestrian bridge in Brisbane …
{.size-thumbnail
.wp-image-156 width="150" height="150"}[/caption]
{.size-thumbnail
.wp-image-154 width="150" height="150"}[/caption]
{.alignleft
.size-thumbnail .wp-image-149 width="150" height="150"}We now have a
slab with rods sticking our where the bales will go. Next week (from
9/11/09) we are going to start putting the frame up with the assistance
of a local carpenter, Johan.
{.alignleft
width="173"
height="240"}
According to
{.alignleft
width="160"
height="240"}
{.alignleft
width="288"
height="216"}
{.alignleft
.size-full .wp-image-125 width="200" height="200"}Solar Girl from the
"
{.alignright
width="240"
height="162"}




John, one of our friends, has given us some free door handles for our new
home. John is a locksmith and has told us that these handles would have
most likely been thrown out.
](http://www.flickr.com/photos/65223305@N00/80785086)Some
of you may remeber the post I have written in August about a different
way to finance a solar power system by basically giving the power
company the right to place their own solar panels onto your roof and you
then …




{.aligncenter
.size-full .wp-image-67 width="400" height="114"}
{.alignright
.size-medium .wp-image-65 width="300"
height="156"}
{.alignleft
.size-medium .wp-image-50 width="300"
height="210"}
{.size-medium
.wp-image-40 width="135"
height="300"}
{.aligncenter
.size-medium .wp-image-15 width="300"
height="160"}
{.size-medium
.wp-image-12 width="300"
height="225"}